Với diện tích 90m2/sàn, yêu cầu đặt ra của chủ nhà là phải tạo ra một không gian sống thẩm mỹ, tràn ngập ánh sáng tự nhiên và một không gian xanh mát thực sự thư giãn.
Nằm tại Hưng Yên, một căn hộ hiện đại, tiện nghi đã gây sự chú ý đặc biệt bởi lối thiết kế độc đáo kết hợp nội thất cổ điển vô cùng sang trọng.
Các kiến trúc sư đã áp dụng một loạt các giải pháp để tạo nên nét độc đáo cho không gian, bỏ qua những chi tiết trang trí rườm rà, thiết kế hoàn toàn mở, sử dụng các vật liệu thủ công mỹ nghệ và tận dụng triệt để các mảng xanh thỏa mãn nhu cầu giải trí của chủ nhà.
Ở tầng 1, phòng khách, nhà bếp và phòng ăn được thiết kế kết nối với nhau qua những bức tường kính lớn xung quanh tận dụng tối đa ánh sáng tự nhiên. Khu vực nhà bếp với tông màu xám của gỗ được thiết kế theo phong cách tối giản với mục đích nhằm tạo ra một khối nền tối nổi bật cho phòng khách.
Trên tầng 2 là không gian nghỉ ngơi thoáng sáng, nhà tắm thoáng mát tràn ngập cây xanh và một khu vườn lý tưởng, nơi thư giãn của cả gia đình và bạn bè.
Cùng dạo một vòng ngắm căn hộ độc đáo này.

Điểm nhấn đặc biệt của căn hộ này đó là một bức tường gạch thô lớn kết hợp với nền nhà láng xi măng nhẵn bóng tạo không gian vừa lạ mắt nhưng lại vô cùng thân thiện và gần gũi.

Những vật liệu thủ công mỹ nghệ khác cũng được chú trọng để đặt tại phòng khách đó là một lò sưởi bằng đồng vô cùng bắt mắt.

Không gian phòng khách thoáng sáng và tràn ngập ánh sáng tự nhiên nổi bật với ghế sofa xanh giữa nền tường màu tối.

Hệ thống cửa kính cao sát trần nơi phòng khách khiến tầm nhìn được rộng mở và ánh sáng có thể len lõi vào từng ngõ ngách của căn hộ.

Khu vực bếp ăn được đặt song song với phòng khách được thiết kế theo phong cách tối giản. Toàn bộ hệ thống tủ kệ tại không gian này đều sử dụng tông màu xám-gỗ tạo nên một khối nền tối nổi bật cho phòng khách.

Bàn ăn lớn với những chiếc ghế cách điệu được đặt ngay sau ghế sofa của phòng khách. Nơi đây vừa có chức năng là bàn ăn nhưng cũng là góc “thư viện” đọc sách lý tưởng cho các thành viên trong gia đình.

Góc phòng ăn có tầm nhìn vô cùng đẹp mắt.

Đáng chú ý trong căn hộ này đó là có một phòng nghiên cứu vô hình được ngụy trang như một kệ sách trong phòng ăn.

Căn phòng này khi cần có thể vừa để nghiên cứu nhưng khi cần vừa có thể chuyển thành phòng ngủ cho khách.

Khu vực nghỉ ngơi, phòng tắm, phòng thay đồ cùng khu vườn giải trí được bố trí trên tầng 2.

Phòng ngủ thoáng rộng với toàn bộ sàn nhà được lát gỗ.

Ngay bên cạnh là không gian nghỉ ngơi thư giãn ngoài trời đẹp mắt.

Không gian phòng tắm hiện đại, thoáng sáng và tràn ngập cây xanh. Bồn tắm trắng muốt được rải xung quang lớp sỏi trắng càng khiến không gian nơi đây thêm sang trọng, đẹp mắt.

Phòng thay đồ rộng rãi với hệ thống tủ kệ thỏa mãn nhu cầu trữ quần áo và đồ dùng cá nhân cho chủ nhà.

Không gian nghỉ ngơi thư giãn lý tưởng nhất phải kể đến góc nhỏ trên tầng 2 này. Khu vực này được gia chủ rất chú trọng trang bị cả những bộ bàn ghế lớn, xung quanh được bao bọc kính cường lực trong suốt vừa để bảo vệ an toàn lại không bị mất tầm nhìn.

Căn hộ đã được tờ tạp chí hàng đầu của Mỹ Archdaily hết lời ca ngợi và giới thiệu tới đông đảo độc giả.

Sơ đồ bố trí khu vực tầng 1.

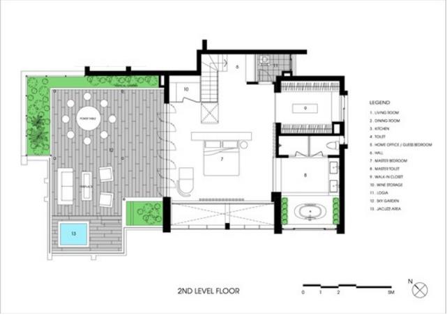
Sơ đồ tầng 2 của căn hộ.
Không có nhận xét nào:
Đăng nhận xét